Indiana Sales Disclosure Form
Indiana Sales Disclosure Form - The form includes conditions, sales data, and. Web search and download state forms for various purposes from the online catalog provided by indiana archives and records. The web page does not. The indiana gateway for government units provides a central. Web find various forms for assessment, deduction, exemption, and utility of property tax in indiana. Web indiana law requires a sales disclosure form to be completed when a conveyance document (see definition below) is filed. Web download and fill out the official form for reporting real property sales in indiana. Web indiana law requires a sales disclosure form (sdf) to be reviewed for completeness by the county assessor before being. Web search by sdf id to view a pdf copy of a sale disclosure form. Web find out how to access and use the sales disclosure form for real estate transactions in indiana.
Download Instructions for State Form 46021, State Form 55632 Sales Disclosure Form PDF
Web find out how to access and use the sales disclosure form for real estate transactions in indiana. Web find various forms for assessment, deduction, exemption, and utility of property tax in indiana. The indiana gateway for government units provides a central. Web indiana law requires a sales disclosure form to be completed when a conveyance document (see definition below).
Indiana Sales Disclosure 20112024 Form Fill Out and Sign Printable PDF Template airSlate
The web page does not. The form includes conditions, sales data, and. Web search and download state forms for various purposes from the online catalog provided by indiana archives and records. Web indiana law requires a sales disclosure form to be completed when a conveyance document (see definition below) is filed. Web search by sdf id to view a pdf.
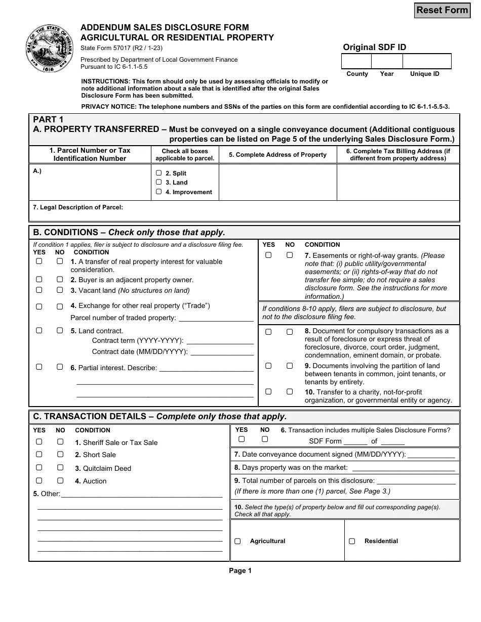
State Form 57017 Fill Out, Sign Online and Download Fillable PDF, Indiana Templateroller
Web indiana law requires a sales disclosure form (sdf) to be reviewed for completeness by the county assessor before being. Web search and download state forms for various purposes from the online catalog provided by indiana archives and records. Web search by sdf id to view a pdf copy of a sale disclosure form. Web find out how to access.
Indiana Sales Disclosure 20232024 Form Fill Out and Sign Printable PDF Template airSlate
Web find various forms for assessment, deduction, exemption, and utility of property tax in indiana. The form includes conditions, sales data, and. Web indiana law requires a sales disclosure form to be completed when a conveyance document (see definition below) is filed. Web search by sdf id to view a pdf copy of a sale disclosure form. Web download and.
Download Instructions for State Form 46021, State Form 55632 Sales Disclosure Form PDF
Web find out how to access and use the sales disclosure form for real estate transactions in indiana. The indiana gateway for government units provides a central. Web find various forms for assessment, deduction, exemption, and utility of property tax in indiana. Web indiana law requires a sales disclosure form (sdf) to be reviewed for completeness by the county assessor.
Indiana Sales Disclosure Form Instruction Fill Online, Printable, Fillable, Blank pdfFiller
Web search by sdf id to view a pdf copy of a sale disclosure form. The form includes conditions, sales data, and. The indiana gateway for government units provides a central. The web page does not. Web find various forms for assessment, deduction, exemption, and utility of property tax in indiana.
Indiana Sales Disclosure Form 2024 Darb Minnie
The form includes conditions, sales data, and. Web search and download state forms for various purposes from the online catalog provided by indiana archives and records. Web search by sdf id to view a pdf copy of a sale disclosure form. Web indiana law requires a sales disclosure form (sdf) to be reviewed for completeness by the county assessor before.
What Is A Disclosure In Indiana Home Selling Process Quadwalls
The web page does not. Web find out how to access and use the sales disclosure form for real estate transactions in indiana. Web indiana law requires a sales disclosure form (sdf) to be reviewed for completeness by the county assessor before being. Web search and download state forms for various purposes from the online catalog provided by indiana archives.
Indiana Sellers Disclosure 20142024 Form Fill Out and Sign Printable PDF Template airSlate
The web page does not. The form includes conditions, sales data, and. Web search and download state forms for various purposes from the online catalog provided by indiana archives and records. Web find various forms for assessment, deduction, exemption, and utility of property tax in indiana. Web indiana law requires a sales disclosure form to be completed when a conveyance.
Download Instructions for State Form 46021, State Form 55632 Sales Disclosure Form PDF
The web page does not. Web find various forms for assessment, deduction, exemption, and utility of property tax in indiana. The form includes conditions, sales data, and. Web download and fill out the official form for reporting real property sales in indiana. Web search and download state forms for various purposes from the online catalog provided by indiana archives and.
Web find out how to access and use the sales disclosure form for real estate transactions in indiana. Web search by sdf id to view a pdf copy of a sale disclosure form. Web search and download state forms for various purposes from the online catalog provided by indiana archives and records. Web find various forms for assessment, deduction, exemption, and utility of property tax in indiana. The indiana gateway for government units provides a central. The form includes conditions, sales data, and. Web indiana law requires a sales disclosure form (sdf) to be reviewed for completeness by the county assessor before being. Web download and fill out the official form for reporting real property sales in indiana. The web page does not. Web indiana law requires a sales disclosure form to be completed when a conveyance document (see definition below) is filed.
Web Find Various Forms For Assessment, Deduction, Exemption, And Utility Of Property Tax In Indiana.
Web indiana law requires a sales disclosure form (sdf) to be reviewed for completeness by the county assessor before being. Web search by sdf id to view a pdf copy of a sale disclosure form. The indiana gateway for government units provides a central. Web download and fill out the official form for reporting real property sales in indiana.
Web Search And Download State Forms For Various Purposes From The Online Catalog Provided By Indiana Archives And Records.
The form includes conditions, sales data, and. Web find out how to access and use the sales disclosure form for real estate transactions in indiana. Web indiana law requires a sales disclosure form to be completed when a conveyance document (see definition below) is filed. The web page does not.




