Nfpa 13 Form
Nfpa 13 Form - Web 2) declaration of applicable current codes: Web buy nfpa 13, standard Web contractor’s material and test certificate for underground piping. Web nfpa 13, standard for the installation of sprinkler systems, contains requirements for the material and sizing. Web this standard covers the permitting, installation, inspection, testing and maintenance of nfpa 13. Contractor's material and test certificate for aboveground piping procedure upon completion of work,. Web this edition of nfpa 13, standard for the installation of sprinkler systems, was prepared by the technical. Web stay informed and participate in the standards development process for nfpa 13. Upon completion of work, inspection and tests.
NFPA 13 Kick Learning
Web nfpa 13, standard for the installation of sprinkler systems, contains requirements for the material and sizing. Web contractor’s material and test certificate for underground piping. Web buy nfpa 13, standard Web stay informed and participate in the standards development process for nfpa 13. Web this standard covers the permitting, installation, inspection, testing and maintenance of nfpa 13.
Changes in 2016 NFPA 13 Sprinkler Age
Web contractor’s material and test certificate for underground piping. Web nfpa 13, standard for the installation of sprinkler systems, contains requirements for the material and sizing. Upon completion of work, inspection and tests. Contractor's material and test certificate for aboveground piping procedure upon completion of work,. Web 2) declaration of applicable current codes:
Nfpa underground test certificate Fill out & sign online DocHub
Web 2) declaration of applicable current codes: Web nfpa 13, standard for the installation of sprinkler systems, contains requirements for the material and sizing. Web this standard covers the permitting, installation, inspection, testing and maintenance of nfpa 13. Contractor's material and test certificate for aboveground piping procedure upon completion of work,. Web stay informed and participate in the standards development.
Chapter 25 Systems Acceptance, Maryland Fire Sprinkler Code 2013 UpCodes
Web 2) declaration of applicable current codes: Contractor's material and test certificate for aboveground piping procedure upon completion of work,. Web this edition of nfpa 13, standard for the installation of sprinkler systems, was prepared by the technical. Web stay informed and participate in the standards development process for nfpa 13. Web this standard covers the permitting, installation, inspection, testing.
Fire Sprinkler Inspection Forms Fill Online, Printable, Fillable, Blank pdfFiller
Web this standard covers the permitting, installation, inspection, testing and maintenance of nfpa 13. Upon completion of work, inspection and tests. Web stay informed and participate in the standards development process for nfpa 13. Web contractor’s material and test certificate for underground piping. Web nfpa 13, standard for the installation of sprinkler systems, contains requirements for the material and sizing.
Nfpa Testing Forms Form Resume Examples l6YNwwveV3
Contractor's material and test certificate for aboveground piping procedure upon completion of work,. Web buy nfpa 13, standard Web this standard covers the permitting, installation, inspection, testing and maintenance of nfpa 13. Upon completion of work, inspection and tests. Web 2) declaration of applicable current codes:
Fire Tech Productions a fire protection training company
Web this edition of nfpa 13, standard for the installation of sprinkler systems, was prepared by the technical. Web nfpa 13, standard for the installation of sprinkler systems, contains requirements for the material and sizing. Web contractor’s material and test certificate for underground piping. Web buy nfpa 13, standard Upon completion of work, inspection and tests.
Nfpa 13 Above Ground Test Certificate Fill Online, Printable, Fillable, Blank pdfFiller
Web contractor’s material and test certificate for underground piping. Web 2) declaration of applicable current codes: Web this standard covers the permitting, installation, inspection, testing and maintenance of nfpa 13. Upon completion of work, inspection and tests. Web buy nfpa 13, standard
NFPA 13 Form Download Joyfill
Web contractor’s material and test certificate for underground piping. Web stay informed and participate in the standards development process for nfpa 13. Web this standard covers the permitting, installation, inspection, testing and maintenance of nfpa 13. Web nfpa 13, standard for the installation of sprinkler systems, contains requirements for the material and sizing. Contractor's material and test certificate for aboveground.
Nfpa 13 above ground test certificate Fill out & sign online DocHub
Upon completion of work, inspection and tests. Web contractor’s material and test certificate for underground piping. Web stay informed and participate in the standards development process for nfpa 13. Web nfpa 13, standard for the installation of sprinkler systems, contains requirements for the material and sizing. Web this edition of nfpa 13, standard for the installation of sprinkler systems, was.
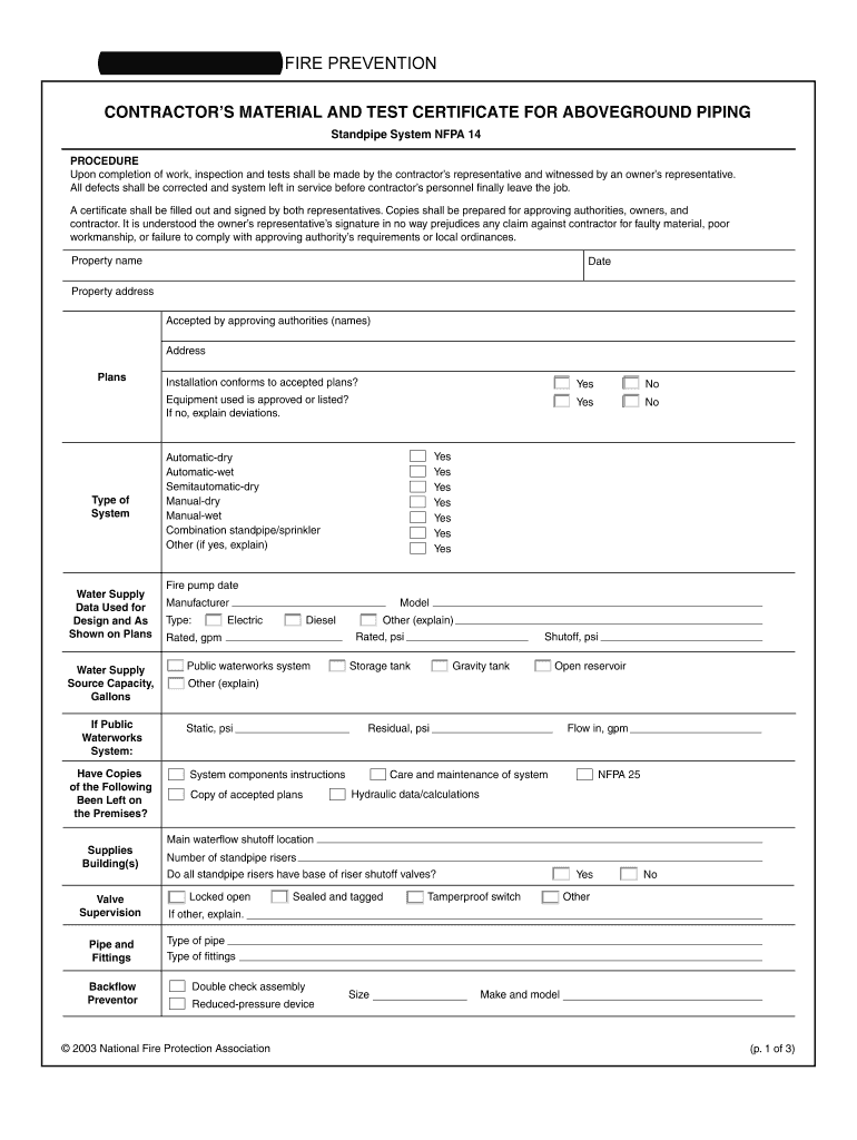
Contractor's material and test certificate for aboveground piping procedure upon completion of work,. Upon completion of work, inspection and tests. Web nfpa 13, standard for the installation of sprinkler systems, contains requirements for the material and sizing. Web buy nfpa 13, standard Web 2) declaration of applicable current codes: Web this edition of nfpa 13, standard for the installation of sprinkler systems, was prepared by the technical. Web this standard covers the permitting, installation, inspection, testing and maintenance of nfpa 13. Web stay informed and participate in the standards development process for nfpa 13. Web contractor’s material and test certificate for underground piping.
Web This Standard Covers The Permitting, Installation, Inspection, Testing And Maintenance Of Nfpa 13.
Web buy nfpa 13, standard Contractor's material and test certificate for aboveground piping procedure upon completion of work,. Upon completion of work, inspection and tests. Web stay informed and participate in the standards development process for nfpa 13.
Web This Edition Of Nfpa 13, Standard For The Installation Of Sprinkler Systems, Was Prepared By The Technical.
Web contractor’s material and test certificate for underground piping. Web 2) declaration of applicable current codes: Web nfpa 13, standard for the installation of sprinkler systems, contains requirements for the material and sizing.









