Npma 33 Forms
Npma 33 Forms - Web this form is approved for fha and va loans. Web factors which may lead to wood destroying insect infestation include: Important consumer information regarding the scope and. Earth to wood contact, foam insulation at foundation in. It’s also typically used when traditional. The national pest management association form is required for real estate transactions involving hud/va loans (except in states that mandate use of their own forms). Learn more about our pricing and how we can help you.
Npma 33 Printable Form
It’s also typically used when traditional. Important consumer information regarding the scope and. Web this form is approved for fha and va loans. Web factors which may lead to wood destroying insect infestation include: Earth to wood contact, foam insulation at foundation in.
NPMA33 WDI Report Forms
Web this form is approved for fha and va loans. The national pest management association form is required for real estate transactions involving hud/va loans (except in states that mandate use of their own forms). Earth to wood contact, foam insulation at foundation in. It’s also typically used when traditional. Learn more about our pricing and how we can help.
NPMA33 Inspection Form from Spectacular Inspection System
Web this form is approved for fha and va loans. Earth to wood contact, foam insulation at foundation in. Web factors which may lead to wood destroying insect infestation include: Learn more about our pricing and how we can help you. The national pest management association form is required for real estate transactions involving hud/va loans (except in states that.
Npma 33 Form 2022 Fill Online, Printable, Fillable, Blank pdfFiller
Learn more about our pricing and how we can help you. Important consumer information regarding the scope and. Web this form is approved for fha and va loans. Web factors which may lead to wood destroying insect infestation include: Earth to wood contact, foam insulation at foundation in.
Npma 33 Printable Form Complete with ease airSlate SignNow
Earth to wood contact, foam insulation at foundation in. Web this form is approved for fha and va loans. It’s also typically used when traditional. Web factors which may lead to wood destroying insect infestation include: The national pest management association form is required for real estate transactions involving hud/va loans (except in states that mandate use of their own.
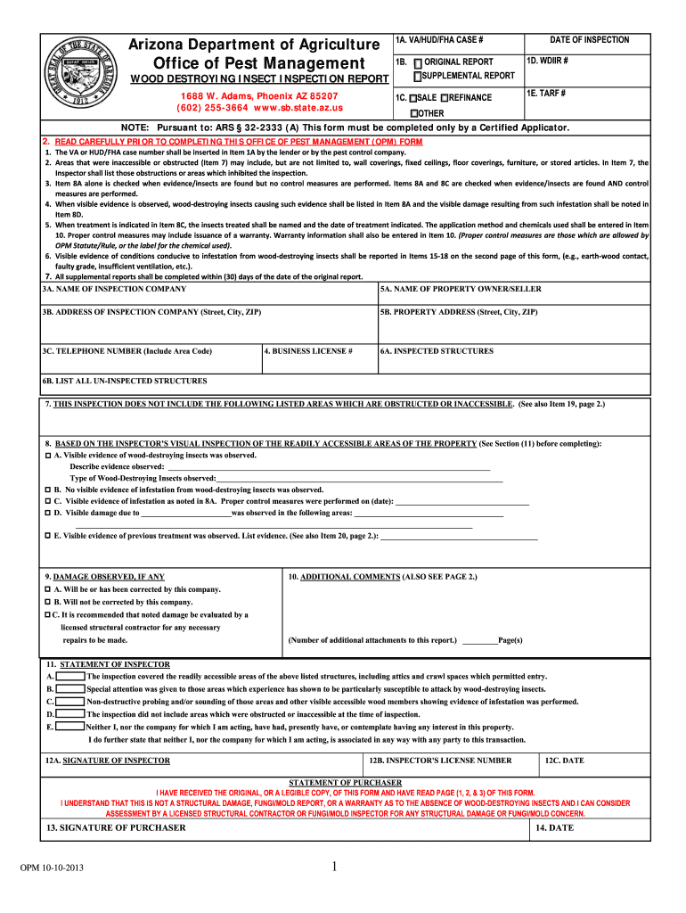
AZ Wood Destroying Insect Inspection Report 2013 Fill and Sign Printable Template Online US
Web factors which may lead to wood destroying insect infestation include: Web this form is approved for fha and va loans. Learn more about our pricing and how we can help you. Important consumer information regarding the scope and. Earth to wood contact, foam insulation at foundation in.
New NPMA 33 WDI Report Forms (Revised July 2019)
The national pest management association form is required for real estate transactions involving hud/va loans (except in states that mandate use of their own forms). Web factors which may lead to wood destroying insect infestation include: Important consumer information regarding the scope and. Web this form is approved for fha and va loans. Learn more about our pricing and how.
NPMA33 TERMITE INSPECTION FORM PDF
It’s also typically used when traditional. Learn more about our pricing and how we can help you. Web this form is approved for fha and va loans. Web factors which may lead to wood destroying insect infestation include: The national pest management association form is required for real estate transactions involving hud/va loans (except in states that mandate use of.
Lesson 1 NPMA33 Termite Inspection Form GorillaDesk
The national pest management association form is required for real estate transactions involving hud/va loans (except in states that mandate use of their own forms). Web factors which may lead to wood destroying insect infestation include: Learn more about our pricing and how we can help you. Important consumer information regarding the scope and. Earth to wood contact, foam insulation.
New NPMA33 Wood Destroying Insect Report Form, 53 OFF
Web factors which may lead to wood destroying insect infestation include: Earth to wood contact, foam insulation at foundation in. Important consumer information regarding the scope and. Web this form is approved for fha and va loans. Learn more about our pricing and how we can help you.
The national pest management association form is required for real estate transactions involving hud/va loans (except in states that mandate use of their own forms). Web this form is approved for fha and va loans. Important consumer information regarding the scope and. Web factors which may lead to wood destroying insect infestation include: Earth to wood contact, foam insulation at foundation in. Learn more about our pricing and how we can help you. It’s also typically used when traditional.
Web Factors Which May Lead To Wood Destroying Insect Infestation Include:
It’s also typically used when traditional. Important consumer information regarding the scope and. Learn more about our pricing and how we can help you. Earth to wood contact, foam insulation at foundation in.
The National Pest Management Association Form Is Required For Real Estate Transactions Involving Hud/Va Loans (Except In States That Mandate Use Of Their Own Forms).
Web this form is approved for fha and va loans.









